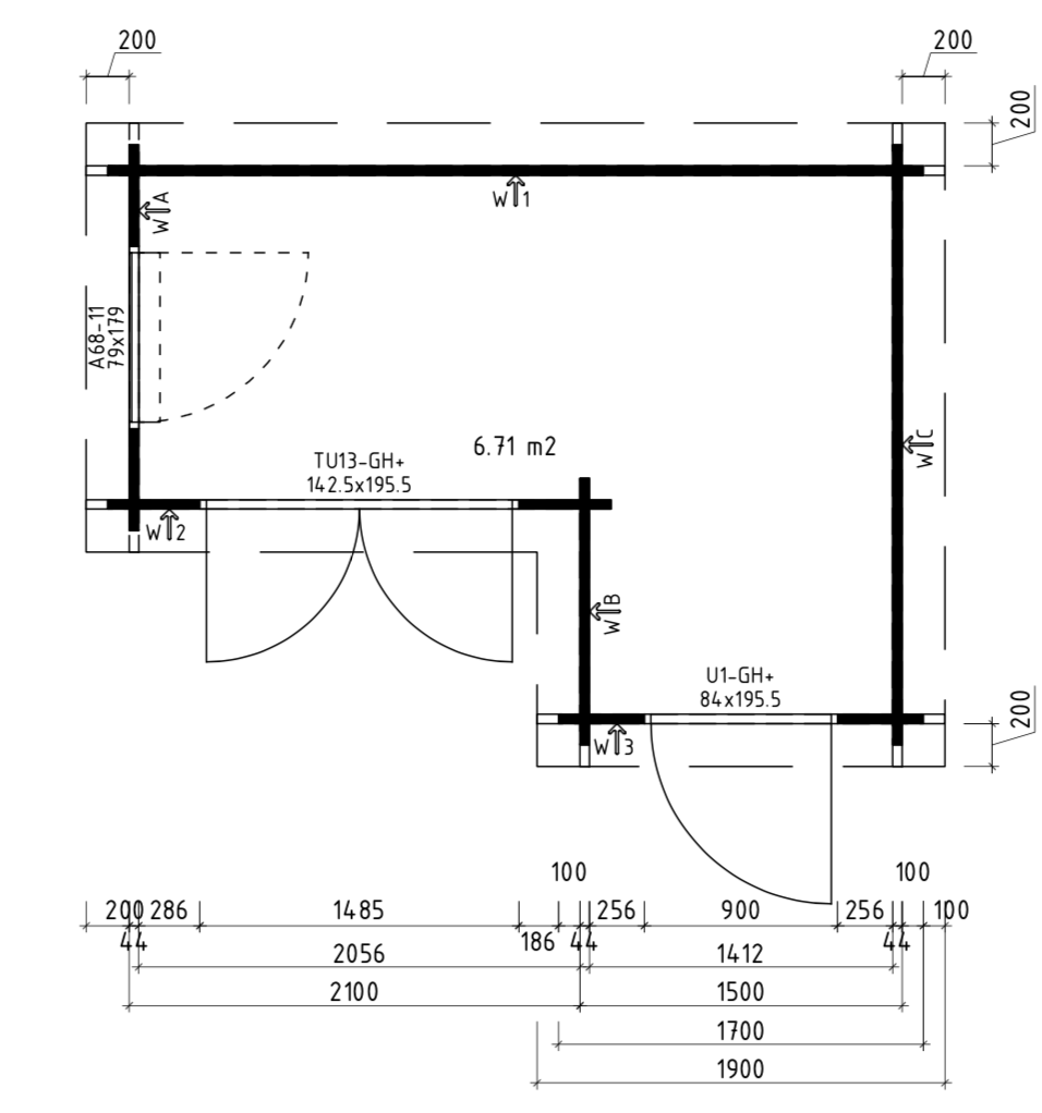
Tutte le casette KOALA della linea ROYAL possono essere personalizzate con misure specifiche o disposizione interna e degli infissi a piacere del cliente. In questo caso, invece, è stata progettata dagli ingegneri di CASETTE ITALIA direttamente su-misura per il cliente che necessitava di gestire uno spazio particolare del giardino, rispettando distanze dai muri e gli alberi già  presenti. Il risultato è davvero bello ed il colore total-white conferisce alla simpatica casetta un look davvero natalizio.

L'ampia superficie vetrata dona grande illuminazione interna con luce naturale. Gli infissi, infatti, sono stati scelti sia per avere la maggior superficie trasparente sia per beneficiare della massima efficienza energetica. Si tratta infatti di infissi a doppio-vetro 3-9-3 con trasmittanza termica U=3. Ringraziamo i colleghi ingegneri per il bel lavoro svolto in progettazione e la squadra di montatori per il montaggio perfetto.