Casetta coibentata e abitabile 365 giorni l’anno dal design raffinato, ideale per essere utilizzata come casa abitabile tutto l’anno, casa vacanze, ufficio da giardino premium, dependance abitativa, studio professionale, B&B e strutture turistico-recettive. La struttura ha un layout a due vani: un ampio open-space ed un vano bagno. Si distingue per l'innovativo sistema costruttivo multimateriale a tre strati, che combina 1) una struttura portante in legno massiccio o lamellare a sistema BLOCKHOUSE, 2) la coibentazione delle pareti con pannelli isolanti e barriera freno-vapore, 3) una pelle esterna con robusti pannelli di acciaio che azzerano la manutenzione esterna e donano un design moderno ed seducente a tutta la casa. Inoltre, sono presenti inserti esterni in thermal-wood di pino nordico a lenta crescita termo trattato, che elevano il design esclusivo del prefabbricato.

Grazie al sistema multistrato, la KÖRE3 assicura massima stabilità, durabilità nel tempo e un’altissima resistenza agli agenti atmosferici più severi. Le pareti sono costruite con sistema BLOCKHOUSE in legno massello da 44mm (disponibile su richiesta anche da 58mm o spessori maggiori) ed i serramenti sono robusti ed isolanti per un utilizzo in tutte le stagioni. La coibentazione del pavimento, del tetto e delle pareti esterne (con pacchetto murario totale di spessore 20cm circa) permette con un semplice sistema di climatizzazione di abitare questa casa per 365 giorni all'anno con il massimo comfort in qualsiasi luogo in Italia.

 

case in legno prefabbricate, casette italia, case prefabbricate, case in legno

 

Gli interni sono caratterizzati dall’ampio open-space living con tanta luce naturale, grazie a vetrate panoramiche Made-in-Germany della SCHUCO ad elevatissimo isolamento termico. Tutti i serramenti sono dotati di meccanismi di apertura di alta qualità, realizzati in Germania e offrire una tenuta di grado abitativo. Tutte le case e casette della linea KÖRE3 sono ingegnerizzato per un assemblaggio rapido e preciso in sito della struttura portante in legno (circa 2 giorni di lavoro). Ciò permette di essere immediatamente abitato anche mentre all’esterno i lavori finalizzano gli strati di coibentazione e l’armor esterno in acciaio (circa 5 giorni).

Casetta coibentata realizzata con materiali di prima scelta, la struttura multimateriale a triplo strato garantisce un isolamento termico eccellente anche nelle stagioni più rigide o piò calde (leggi maggiori informazioni a questa pagina: certificazione-energetica-della-casetta-legno). L’intercapedine tre le pareti in legno e l’armor in metallo esterno permette di installare a scomparsa sia impianto elettrico che idraulico con estrema facilità. Il pavimento in legno massello è sempre incluso nel kit, ed insieme al legno delle pareti (legno a vista all’interno della casa) sono provenienti da foreste certificate, garantendo un prodotto ecologico, robusto e dall'estetica impeccabile nel tempo.

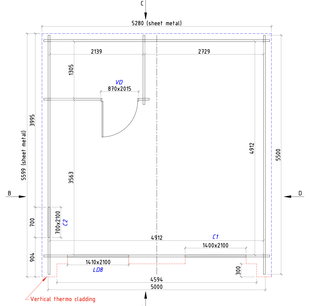
Fronte-Lato Esterni
5,2 x 5,5
Fronte-Lato Interni
4,9 x 4,9
Altezza max
3.63m
Altezza min
2.38m
Metratura
28.00m²
Spessore parete
44.00mm
Codice prodotto
KORE3-28
  • Coibentata: grado abitativo
  • Armor in acciaio
  • Design esclusivo
Prezzo
23.160€
Assi di fondamenta Trattate in autoclave
Assi di fondamenta trattate in autoclave
Assi essiccate a  processo controllato
Assi essiccate a processo controllato
Rinforzi anti-tempesta
Rinforzi anti-tempesta
Legni certificati CE
Legni certificati CE
Legni certificati FSC
Legni certificati FSC

Caratteristiche principali

Le pareti blockhouse in legno di pino nordico hanno spessore 45mm (ma è possibile anche realizzarla con spessori maggiori o legno lamellare).

Gli infissi sono in uPVC Made-in-Germany della SCHUCO (detto anche PVC-U). L'uPVC è il policloruro di vinile non plastificato, una forma resistente di plastica ampiamente utilizzata nell'edilizia per infissi che a differenza del PVC tradizionale, non contiene plastificanti, garantendo maggiore robustezza (perfetto per infissi strutturali), durevolezza, resistenza agli agenti atmosferici e ottime proprietà di isolamento termico. I vantaggi sono: 1) bassa manutenzione, non necessita di verniciatura e resiste alla corrosione; 2) isolamento ed efficienza con ottime prestazioni termiche ed acustiche; 3) durata perché resistente ai raggi UV e all'usura; 4) sostenibilità in quanto  riciclabile.

Gli isolamenti termici, quindi la coibentazione del tetto, del pavimento e il cappotto esterno alle pareti, sono composti da 100mm di materiale isolante e dalla barriera al vapore che impedisce l’ingresso dell’umidità ma permette alla casa di “respirare”, quindi di rilasciare il vapore acqueo verso l’esterno. Trasmittanza del pacchetto murario U= 0,39 (W/m²K). con pacchetto murario di spessore 20cm circa. Trasmittanza totale degli infissi Uw= 1.4 (W/m²K). Trasmittanza del tetto U= 0,31 (W/m²K). (calcolo eseguito considerando come isolante l’EPS - Polistirene Espanso Sinterizzato)

Il kit di questa casetta coibentata prevede che tutte le assi di appoggio delle pareti e del pavimento al terreno (assi di fondamenta) siano trattate in autoclave per essere completamente resistenti ad acqua, umidità, muffe e funghi. Inoltre tutte le assi blockhouse delle pareti, del tetto, del pavimento sono pre-trattate in forno con processo controllato ed hanno umidità inferiore al 16%. Quindi il kit include: la fornitura delle pareti BLOCKHOUSE, la fornitura del pavimento in perline di legno massello, la fornitura delle assi di fondamenta da posizionare tra la casa ed il basamento, la fornitura di tutti gli infissi interni ed esterni (in colore grigio o bianco), la fornitura dei pannelli metallici di rivestimento esterno, la fornitura del thermal-wood esterno in pino nordico a lenta crescita trattato termicamente per garantire estetica e resistenza agli agenti atmosferici, gronde e pluviali in abbinamento all'armor metallico. Il kit non include il materiale isolante per tetto/pavimento/pareti (generalmente il materiale coibentante EPS di 10cm e la barriera freno-vapore) in quanto esso può essere scelto dal cliente per spessore e tipologia di materiale ai fini di ottenere una trasmittanza specifica necessaria per la zona climatica di installazione).

 

Come ordinare

Un team tecnico-commerciale è a tua completa disposizione via email o telefono per comprendere i tuoi desideri di prodotto e requisiti tecnici. Potranno inviarti tutte le informazioni necessarie della casetta che preferisci, oppure  un progetto gratuito della tua casetta su-misura. Chiamaci o inviaci una email e sarai richiamato. Email: info@casette-italia.it - tel: 035.0667021

Dichiaro di aver letto l'informativa ex art. 13 dlg 196/03 e di accettare i termini in essa esposti. Acconsento al trattamento dei miei dati. (dettagli)

Prodotto e montaggio

Se desideri maggiori informazioni tecniche riguardo il prodotto richiedi la scheda tecnica di prodotto che potrà essere utile anche al tuo tecnico di fiducia nel caso di autorizzazioni comunali. Le istruzioni di montaggio sono presenti in versione cartacea nella cassa. Presentano tutti i pezzi presenti ed il loro montaggio nella casetta. Se desideri l’installazione a regola d’arte da parte di professionisti allora richiedici il montaggio incluso. I con i nostri maestri-artigiani locali concorderanno con te la data di montaggio e potrai comodamente pagarli al completamento dell’installazione. Altrimenti con i 2 video-tutoriali al montaggio potrai essere autonomo. Infine, puoi scegliere di coprire la tua casetta con tegole canadesi in ardesiata e di uno dei seguenti colori. Quando fai l'ordine comunicaci il colore prescelto.

 

 

Trio tegole canadesi

 

Consegna e scarico

Consegna standard? Se il tuo indirizzo di consegna è standard il nostro moderno camion con muletto-a-bordo potrà consegnarti la casetta facilmente anche posizionandola all'interno del tuo giardino o proprietà se l’accesso lo consente.

Consegna in aree poco accessibili? Il nostro team di logistica ama il problem-solving. Quindi se devi effettuare la consegna aree poco accessibili come montagna, parchi naturali ecc. puoi informarli sul luogo preciso. Organizzeremo una soluzione di trasporto speciale attraverso furgone, camion-con-gru, nave o elicottero. Risolviamo qualsiasi problema, mettici alla prova!

Scarico professionale e stoccaggio ottimale: scaricheremo la tua casetta con muletto o transpallet in base alle tue necessità ed al tuo sito. Tutti i prodotti sono imballati in casse robuste e anti-pioggia. Il tempo di consegna è funzione del modello scelto, generalmente 4/6 settimane in media. Il nostro team di logistica organizza per te anche lo “scarico manuale” se gli accessi alla tua proprietà sono piccoli per muletto o transpallet.

Ritiro in autonomia: è possibile il ritiro diretto da parte dell’acquirente presso la nostra logistica, a questo proposito vi consigliamo di fare attenzione alle misure ed al peso dell'imballaggio riportate nella scheda prodotto per valutare se il vostro mezzo è idoneo.

Garanzia e supporto

GARANZIA 100% - SODDISFATTI O RIMBORSATI

Solo Casette Italia propone questa garanzia perchè solo noi siamo specializzati nella progettazione, produzione e montaggio delle casette a sistema blockhouse. Nessun altro ha sviluppato abbastanza esperienza da rischiare di garantirti il risultato finale del prodotto montato. Noi siamo sicuri dei nostri legni certificati-FSC, dei nostri ingegneri che progettano con passione e precisione, delle nostre linee produttive scandinave a processo controllato, dei nostri professionisti locali che installano e quindi ti garantiamo il risultato. La garanzia per tutti i nostri prodotti è 10 anni.

Servizio Clienti disponibile sia per i consigli pre-vendita che per il supporto al montaggio. Contattaci via email, telefono o WhatsApp. Se hai un dubbio su come montare la tua casa, puoi contattarci sempre e ti assisteremo a trovare la miglior soluzione.

Richiedi un sopralluogo

Se desideri un tecnico che visioni il tuo sito per valutare al meglio allora verremo da te per consigli sul prodotto e sull'installazione. Il costo standard del sopralluogo varia da €100-€300 (ti verranno restituiti al momento dell'ordine). Contattaci via email per richiederlo.

Pagamento

Per conferma l’ordine richiediamo un acconto tra il 30% ed il 50% a secondo del prodotto (i prodotti su misura o personalizzati richiedono un acconto del 50%). Il saldo invece lo paghi solo alla consegna della casetta.

In ogni caso le nostre “condizioni di vendita” ti permettono di annullare l’ordine e quindi di ricevere sempre l’intero anticipo versato. La serietà e professionalità di Casette Italia sono una garanzia anche su questi aspetti: leggi le recensioni sia su TRUSTPILOT che su FACEBOOK.

Informazioni su certificazione strutturale

Su richiesta del cliente possiamo fornire il servizio di relazione strutturale e antisismica. Inoltre, anche se le nostre strutture standard sono robuste e resistenti grazie al sistema blockhouse ed alle travi del tetto sovradimensionate va considerato che su alcune zone d’Italia prescrivono la resistenza a sisma, venti elevati e carichi neve particolari. Per alcune zone del territorio nazionale, come ad esempio quelle ad altitudini elevate, potrebbero essere necessari dei rinforzi alla struttura base.

Mettiamo a disposizione un ingegnere specializzato che su richiesta redige i calcoli e le relazioni necessarie in base alle caratteristiche specifiche del sito come altitudine, zona sismica, vento, terreno, ecc.

Dichiaro di aver letto l'informativa ex art. 13 dlg 196/03 e di accettare i termini in essa esposti. Acconsento al trattamento dei miei dati. (dettagli)

Perché scegliere Casette Italia

Alta qualità

Legni selezionati di abete bianco nordico a lenta crescita con minima densità di nodi, legni certificati FSC, ingegneri del BlockHouse e processi produttivi controllati creano prodotti di altissima qualità.

Garanzia 10y

Tutte le casette, chalet, case abitabili e garage, sia standard che su misura, sono prodotti garantiti 10 anni contro i difetti di fabbricazione (standard EU).

Garanzia 100% soddisfatti o rimborsati

Solo Casette Italia propone questa garanzia perchè solo noi siamo specializzati nella progettazione, produzione e montaggio delle casette a sistema blockhouse.

Supporto al montaggio

Solo Casette Italia propone questa garanzia perchè solo noi siamo specializzati nella progettazione, produzione e montaggio delle casette a sistema blockhouse.

Certificazione strutturale

Su richiesto dal cliente, forniamo il servizio di calcolo e redazione della Relazione Strutturale e della Relazione Antisismica per le autorizzazioni comunali.

Cosa può fare per te Casette Italia

Sogni una casetta da giardino, un garage o uno chalet di alta qualità, magari coibentato per viverlo molti mesi all’anno e di qualità superiore per lasciare amici e parenti a bocca aperta? Possiamo realizzare il tuo sogno sia con i nostri prodotti standard oppure con personalizzando su misura il tuo progetto. Lo facciamo da più di 10 anni e puoi leggere le recensioni dei nostri clienti sia su Facebook che si TrustPilot.

Utilizziamo solo abete nordico bianco a lenta crescita, certificato FSC e a bassa densità di nodi. Progettiamo i nostri tetti in modo sovradimensionato e rinforzato, trattiamo tutte le assi di fondamenta in autoclave e utilizziamo doppi-vetri per gli spessori superiori ai 44mm. Possiamo offrirti un servizio completo fino all’installazione e manutenzione ordinaria della tua casetta.

Possiamo farti toccare con mano le nostre realizzazioni perché alcuni clienti acconsentono alla visione delle loro installazioni: vedi la sezione “le nostre show-room” per trovare quella più vicina a te.

Aggiungi un commento

Inviando questo commento accetti la Privacy Policy Casette Italia che è GDPR-compliant e quindi acconsenti affinchè i tuoi dati siano siano salvati sul server per rendere disponibile il servizio di commenti. Potrai sempre cancellare tali dati inviando una email a gdpr@casette-italia.it.